Building Progress: From Wall Plates to Roofing Crews, Apprentices Lead the Way to Topping Out
Progress Report after a Month of Work

Dear friends,
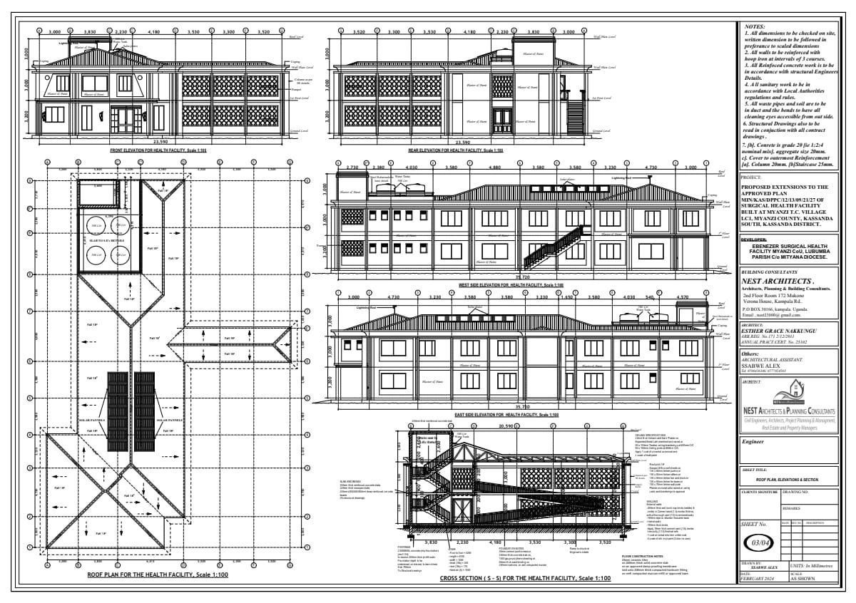
The work started with mobilization of different crews of apprentices, who had taken a break doing their own personal business after they reached a milestone of getting to the wall plates this past March 2025.
During the last week of August, we started delivering materials on site and these included, truckloads of sand for plastering, steel tubes for roof trusses door frames and windows, trucks of timber.
It's been a process for all this past time to date, as we had to fabricate and assemble all our components from scratch to finished items.
Safety culture had to be rigorously revised right away for such a tight site, to let every activity proceed without incidents or accidents. Overhead work has been the potential hazard but so far so good we are doing well.
One of the plastering crew headed by Mr David Shaka has done such an incredible job installing windows and exterior plastering.
Mr Issa Nsubuga headed the fabrication of windows and doors which quite to good quality.
The roofing crew has very interesting and talented apprentices who have put on a quality output which made to district inspector shake his head in satisfaction of work. These apprentices are 21year old Frank Baale, 23 year old Willy Mutebi, 19 year old Okello from northern Uganda, and the head boss Mr Deo Nyanzi. The installation of the roofing sheets will be headed by Mr Alex Ntwatwa.
More updates are on the way as we make more progress and soon getting closer to the Topping out ceremony. We thank you for your support and prayers.
Sincerely,
Patrick Lutalo




































































